2D kuvat

Rakennuslupakuvat

Rakennuslupakuvat ja myyntipohjat

Myös vanhojen kuvien digitointi DWG-formaattiin.

Rakennuspiirustukset

 - uudiskohteet
- saneerauskohteet
- laajennukset
- ajantasakuvat yms.
- kuvien piirto ja lupien haku
- asemapiirros, pohjakuvat, julkisivut, leikkaukset, työkuvat, detaljit yms.

  

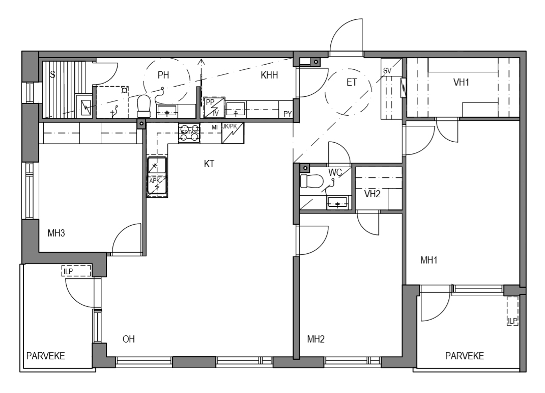
Talon myyntipohja

Vanhojen kuvien digitointi

Teemme vanhoista paperisista pohjakuvista tai PDF, JPG, TIFF yms. tiedostoista nykyaikaisen digitaalisen DWG-tiedoston. Ja ellei rakennuksesta ole kuvia ollenkaan olemassa, niin mitataan se ja piirretään kokonaan uudet kuvat.

Myyntipohjat

Siistit ajantasaiset pohjakuvat asunnosta antavat ostajalle heti paremman käsityksen kaupan kohteesta.

Studio Saari
Studio Saari

Yliopistonkatu 13 b
20100 TURKU

Yhteystiedot

info@studiosaari.fi
Mobiili: 040 5390522
Toimisto: 02 232 6000